包头市
关闭
B
包头市
H
海口
首页
新房
找楼盘
团购
帮你找房
地图找房
资讯
楼盘动态
购房指南
房产资讯
楼盘导购
房产宝典
房产百科
优惠活动
二手房
在售房源
小区找房
我要求购
地图找房
找经纪人
出租房
出租房源
我要求租
商铺
商铺出售
商铺出租
写字楼
写字楼出售
写字楼出租
问答
咨询电话:0898-32622888
登录
/
注册
退出
您的位置:
首页
>
新房
> 中海-未来之境
手机看房
更方便
中海-未来之境
预售
品牌地产
低密居住
售楼处电话
15561281578
楼盘主页
楼盘动态
在售户型
楼盘相册
楼盘信息
楼盘问答
价格走势
楼栋信息
楼盘点评
全部(
4
)
四居室(
1
)
三居室(
3
)
←
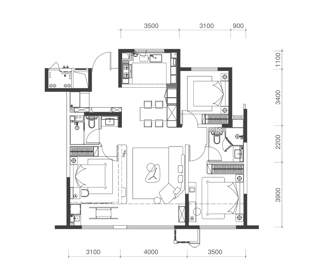
4室2厅2卫1厨
139.00㎡
3室2厅2卫1厨
129.00㎡
3室2厅2卫1厨
117.00㎡
3室2厅2卫1厨
115.00㎡
→
户型图(
1
/
1
)
查看大图
户 型
3室2厅2卫1厨
建筑面积
115.00㎡
参考价格
8500
元/㎡
获取最新价格变动
参考总价
98
万元/套
项目特色
户型解析
售楼处咨询电话
15561281578
免费通话
(3室2厅2卫1厨)